Gainesville Housing Authority
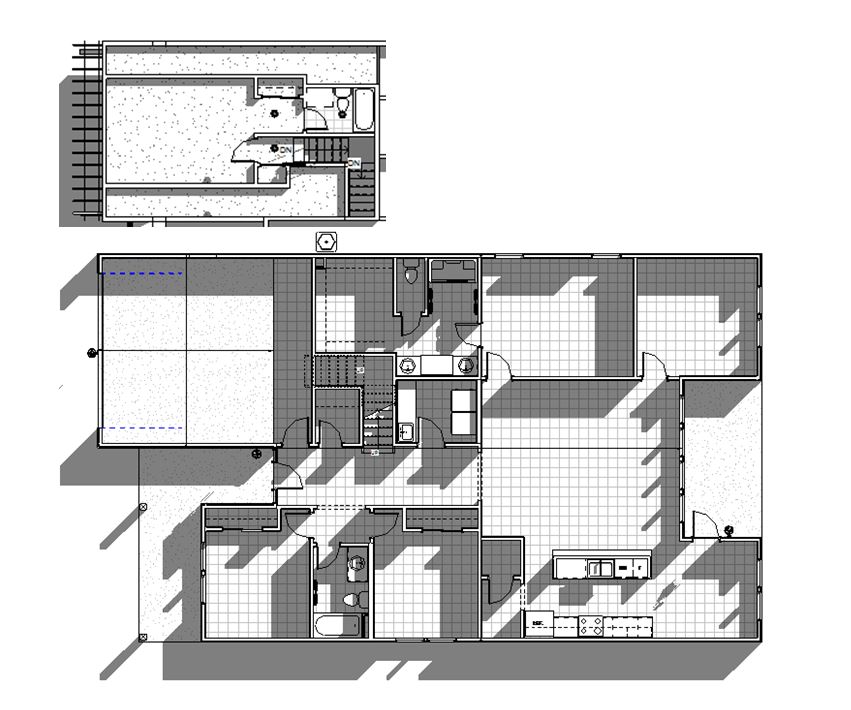
Floor Plan
Front elevation
Private Area Interiors
Public Area Interiors
NAHB Family Room
NAHB Floor Plan
NAHB kitchen