Home
About
Services
10 Reasons to Hire An Architect
Design News
Contact Us
High End Housing
Bespoke Design For Unique Sites
Please ensure that JavaScript is enabled otherwise some features may not work.
Hawaii Home
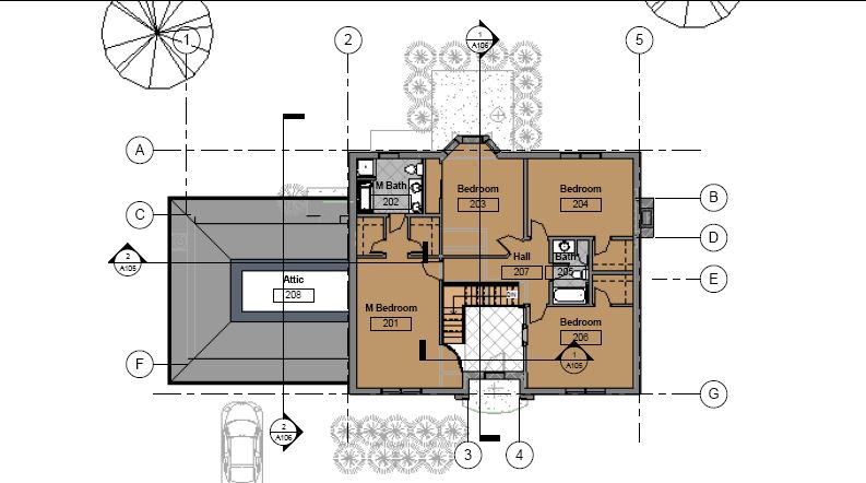
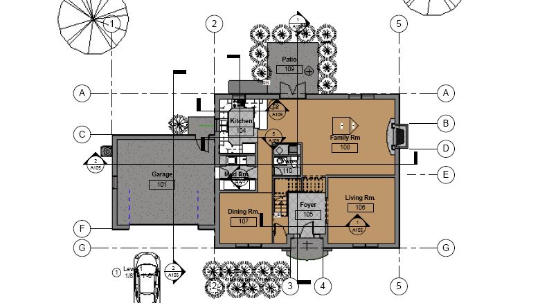
McMansion For Building Design
(view) McMansion Family Room
(view) McMansion Foyer
(view) McMansion Master
(view) More of McMansion